Omschrijving
CHARMANTE JAREN 30 EENGEZINSWONING MET SERRE | 98 M2 | 5-KAMER WONING | VOOR – EN ACHTERTUIN | NETJES OPGELEVERD | OPLEVERING KAN SNEL | GOEDE BEREIKBAARHEID MET OV EN UITVALSWEGEN | KINDVRIENDELIJKE OMGEVING |
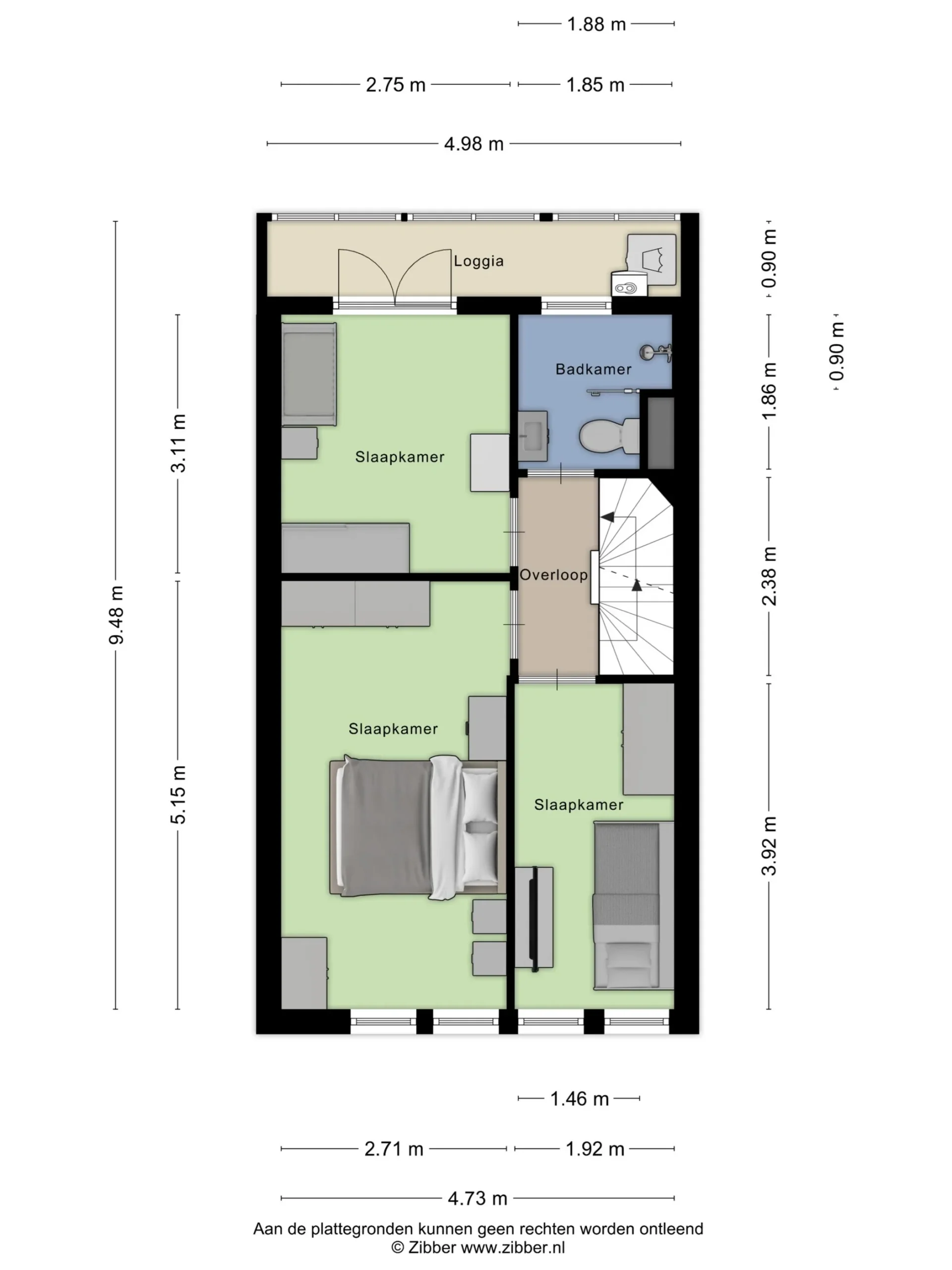
Gelegen in een karakteristieke en rustige straat in Den Haag, biedt deze charmante drie-laagse rijwoning uit 1930 een comfortabele en praktische leefomgeving. Met een gebruiksoppervlakte van 98 m² en in totaal 4 slaapkamers (3 slaapkamers + een ruime zolderkamer) is deze woning ideaal voor gezinnen, koppels of iedereen die behoefte heeft aan extra leefruimte. De woning combineert de charme van historische bouw met modern comfort. Bij binnenkomst op de begane grond valt meteen de lichte en sfeervolle woonkamer op, met grote ramen, hoge plafonds en vloerverwarming die bijdragen aan het aangename wooncomfort. De woonkamer loopt over in de keuken, die is uitgerust met een ingebouwde oven, koelkast, vriezer, elektrische kookplaat en afzuigkap. Het keukenontwerp is klassiek maar neutraal van uitstraling en biedt een solide basis om naar eigen smaak te moderniseren. Ook op de begane grond bevindt zich een praktisch toilet en een handige ingebouwde opbergruimte onder de trap. Aan de achterzijde van de woning is een aangebouwde serre, een heerlijke plek om te ontspannen. De serre beschikt over een houtkachel en een werkende heater, waardoor je hier het hele jaar door comfortabel kunt vertoeven, genietend van de gunstige lichtinval. Op de eerste verdieping bevinden zich drie ruime slaapkamers, elk met voldoende ruimte om in te richten als babykamer, logeerkamer, hobbyruimte of werkplek. Daarnaast is hier een moderne badkamer aanwezig, voorzien van een inloop regendouche en een badkamermeubel met veel opbergruimte. Ook is er een loggia met de CV-ketel en extra bergruimte. De bovenste verdieping biedt een ruime zolderkamer, perfect in te richten als extra slaapkamer, hobbykamer of werkruimte. Ook hier is voldoende opbergruimte aanwezig en kan de ruimte eventueel dienstdoen als wasruimte. De woning beschikt over een onderhoudsvriendelijke achtertuin met volop potentie en gunstige lichtinval. Er is een schuur met elektriciteit, ideaal voor fietsen of opslag. Aan de voorzijde is een kleine, verzorgde voortuin aanwezig. De ligging is uitstekend: op korte afstand van openbaar vervoer, winkels, scholen, parken en belangrijke uitvalswegen richting het centrum van Den Haag en omliggende plaatsen. Deze woning biedt de perfecte combinatie van historische charme en modern wooncomfort en is daarmee een unieke kans voor wie op zoek is naar een karaktervolle, goed onderhouden rijwoning in een geliefde buurt van Den Haag.
Bijzonderheden – Eigen grond – Bouwjaar 1930 – Woonoppervlakte 98 m² – 4 ruime slaapkamers – Kozijnen met dubbel glas – Voor- en achtertuin aanwezig – Nabij winkels, scholen, openbaar vervoer (tram 1, 16 en 17) en uitvalswegen – Station Hollands Spoor, Megastores en oud Rijswijk op loopafstand – Balkon aanwezig – Energielabel D – Oplevering in overleg.
Geinteresseerd in deze karakteristieke woning vol potentie? Maak snel een afspraak met het team van 88Makelaars!
A+
A
B
C
D
E
F
G
H









































































































































































































































































