Omschrijving
OPGELET | 4 RUIME SLAAPKAMERS |GROEN KINDVRIENDELIJKE BUURT | 130M2 | LOOPAFSTAND MALL OF THE NETHERLANDS | OPLEVERING KAN PER DIRECT
In deze groene straat, met parkeergelegenheid en een speeltuin, is eindelijk weer een woning beschikbaar! Deze direct te betrekken tussenwoning biedt volop ruimte met 4 slaapkamers en beschikt over zowel een voor- als achtertuin. Gelegen in de gewilde en kindvriendelijke wijk De Zijde, op loopafstand van het Mall of The Netherlands – het grootste winkelcentrum van Nederland – en natuurgebied De Horsten. Tramlijnen 2 en 6 zijn binnen handbereik, evenals de uitvalswegen A4 en N44. Bovendien ligt de wijk op loopafstand van bossen en diverse recreatiemogelijkheden.
De woonwijk onderscheidt zich door haar groene karakter, brede lanen, rustige sfeer en centrale ligging. Kortom: een ideale woonomgeving!
Indeling:
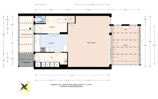
Via de voortuin bereikt u de voordeur. Bij binnenkomst betreedt u de hal, waar zich de meterkast, een modern toilet met fonteintje en de trap naar de eerste verdieping bevinden. De hal biedt toegang tot de keuken en de lichte, ruime woonkamer. Deze woonkamer is voorzien van grote ramen aan zowel de voor- als achterzijde, waardoor er veel daglicht binnenvalt. Aan de achterzijde vindt u de deur naar de zonnige achtertuin, waar u vanaf de ochtend kunt genieten van de zon. In de tuin bevindt zich een ruime berging, ideaal voor fietsen en opslag, en een handige achterom. Op de eerste verdieping bevinden zich drie slaapkamers, waarvan twee zeer ruim en een derde iets compacter. De royale slaapkamer aan de voorzijde biedt een mooi uitzicht op de voortuin en de straat. De ruime slaapkamer aan de achterzijde, momenteel ingericht als ouderslaapkamer, kijkt uit op de achtertuin. De derde slaapkamer is ideaal te gebruiken als werk-, studeer- of logeerkamer. Daarnaast is op deze verdieping ook de badkamer gelegen. De zolderverdieping is ingericht met een overloop en een ruime vierde slaapkamer, voorzien van dakkapel aan de achterzijde. Op de overloop bevinden zich de CV-ketel en aansluitingen voor een wasmachine en droger.
BIJZONDERHEDEN: • Woonoppervlakte ca 130m2 • Gelegen op eigen grond • Bouwjaar 1969 • Energielabel C • 4 slaapkamers • Ruim nette voortuin • Genoeg parkeergelegenheid • Wonen in een groen kindvriendelijke omgeving • The Mall of Netherlands op loopafstand • Oplevering kan per direct
INTERESSE IN DIT HUIS? MAAK DAN SNEL EEN AFSPRAAK! Bij ons staat persoonlijke aandacht voorop. Wij plannen graag samen een moment in voor de bezichtiging van dit huis. Nog vragen? Wij staan voor je klaar om deze te beantwoorden! Zien wij jou binnenkort? Het team van 88 Makelaars
A+
A
B
C
D
E
F
G
H

































































