Omschrijving
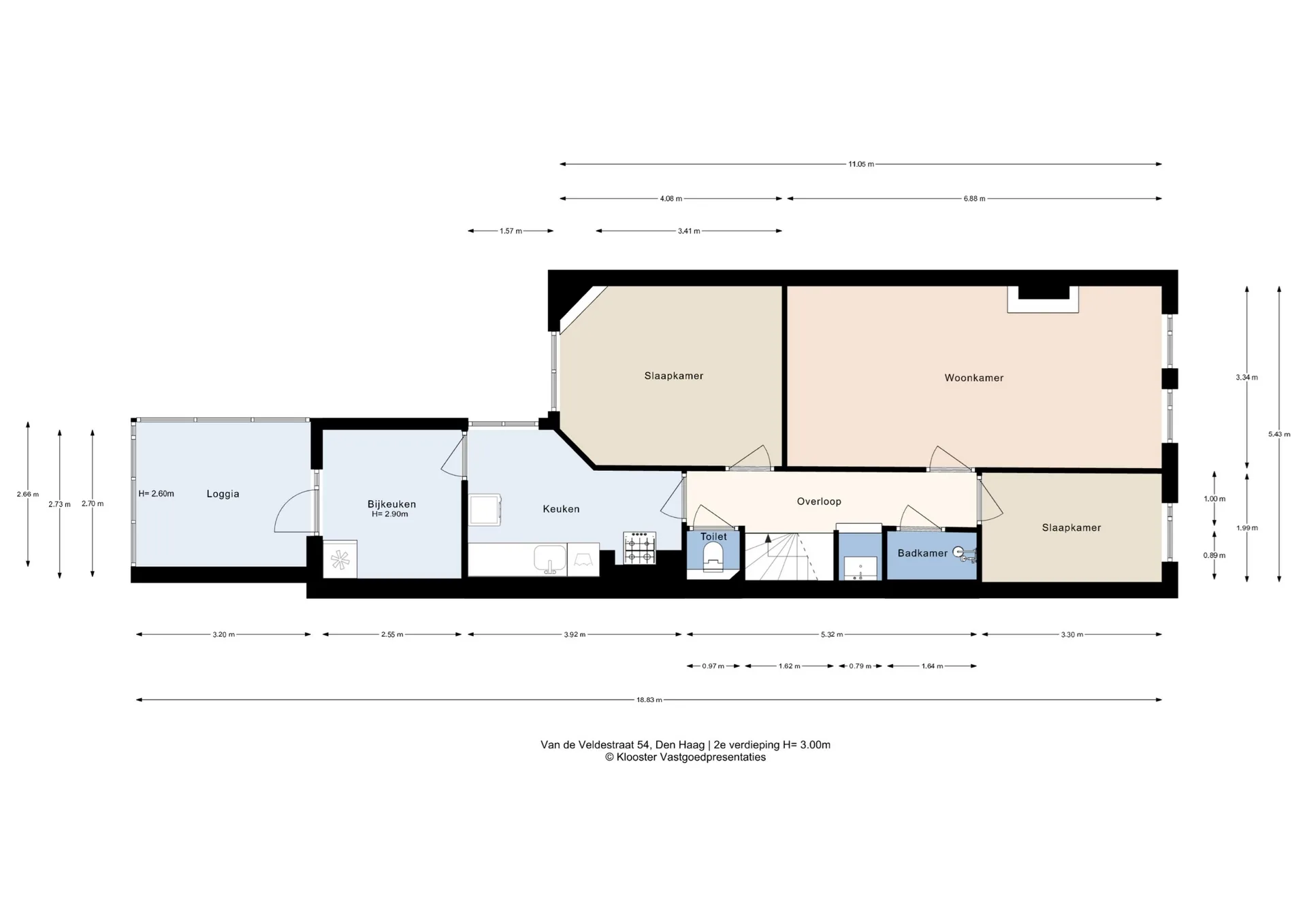
Sfeervol appartement in een levendige stadswijk! Welkom aan de Van de Veldestraat 54 in Den Haag! Dit unieke bovenwoning-appartement met een woonoppervlakte van circa 81 m² biedt een fijne combinatie van ruimte, karakter en een centrale ligging. Gebouwd in 1906 en gelegen in een gezellige stadswijk, is dit een ideale woning voor starters, jonge gezinnen of woningzoekers die comfortabel willen wonen nabij alle voorzieningen. Ligging De woning is gelegen in een leuke en kindvriendelijke wijk in Den Haag, met een prettige mix van gezinnen en stadsbewoners. Hier woon je rustig, maar toch midden in het stadsleven. Op loopafstand vind je een supermarkt en diverse winkels voor de dagelijkse boodschappen. Het centrum van Den Haag bereik je eenvoudig per fiets, net als een treinstation. Met de auto zit je bovendien binnen circa 5 minuten op de eerste uitvalswegen. De bereikbaarheid is dan ook uitstekend, zowel met het openbaar vervoer als met de auto. Indeling Via de entree bereik je de woning op de verdieping. De woning beschikt over twee slaapkamers, een ruime woonkamer en een praktische bijkeuken. De woonkamer vormt het hart van het appartement en biedt volop ruimte voor een gezellige zit- en eethoek. Dankzij de prettige indeling en de mooie lichtinval voelt de woning ruim en comfortabel aan. De twee slaapkamers zijn goed bemeten en geschikt als hoofdslaapkamer, kinderkamer of werkkamer. De aanwezige bijkeuken biedt extra opslagruimte, maar kan desgewenst worden omgebouwd tot een derde (slaap)kamer. Hierdoor is de woning flexibel in te delen en aan te passen aan jouw woonwensen. Met een woonoppervlakte van circa 81 m² biedt deze bovenwoning een fijne balans tussen ruimte en comfort.
Bijzonderheden: – Bovenwoning – Bouwjaar 1906 – Woonoppervlakte ca. 81 m² – VVE: Maandelijkse bijdrage van 50,- EUR – 3 kamers waarvan 2 slaapkamers – Extra bijkeuken (mogelijkheid tot extra slaapkamer) – Loggia voor extra ruimte, opslag of naar eigen smaak in te richten – Veel lichtinval – Goede bereikbaarheid openbaar vervoer en uitvalswegen – Gelegen in een levendige stadswijk – Nabij winkels, supermarkt en centrum Ben je op zoek naar een ruim appartement met karakter op een centrale locatie in Den Haag? Maak dan snel een afspraak voor een bezichtiging en ontdek zelf de mogelijkheden van deze woning!
A+
A
B
C
D
E
F
G
H


































































































































































































