Omschrijving
Omschrijving
Heerlijk licht, sfeervol, karakteristieke 3/4-kamer woning uit de jaren 30. De woning is gelegen op de begane grond en heeft een woonoppervlakte van ca. 90 m² met zeer zonnige riante achtertuin (125 m²). Goed onderhouden met veel mooie originele details. Aan de achterzijde van het huis is er een open doorkijk waardoor er veel privacy is en er gedurende het jaar veel zon in het huis komt.
Leuk wonen in Den Haag. Dat kan goed in deze buurt. Dit prachtige huis is gelegen in de buurt Bezuidenhout-Oost. De buurt heeft naar verhouding veel jonge inwoners van tussen de 25 en 44 jaar. Verder is het een betrekkelijk rustige buurt gekeken naar de bevolkingsdichtheid. De woning is goed gelegen nabij (Internationale) scholen, groen (Haagse Bos), strand en duinen (Scheveningen), winkels (o.a. Theresiastraat), sportfaciliteiten, openbaar vervoer en uitvalswegen. De woning heeft een goede mix van een moderne uitstraling met behoud van originele details.
DE PLUSPUNTEN VAN HET HUIS
—————————————-
+ Statig herenhuis met diverse oude stijlelementen.
+ Isolerend glas.
+ Riante achtertuin van ruim 16 meter diep.
+ Gelegen op eigen grond.
+ Woonkamer en-suite.
+ 3/4 kamers, waarvan 2 slaapkamers.
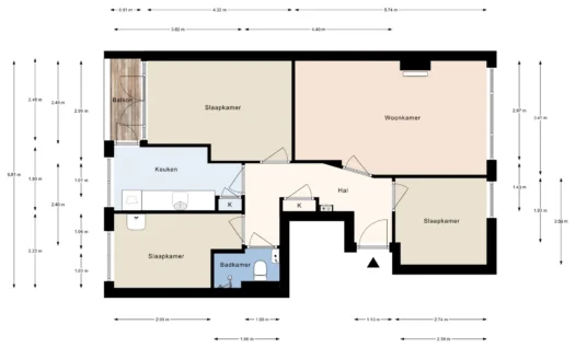
Indeling
Begane grond:
Entree woning met een ruime hal die je toegang geeft tot een drietal kamers, badkamer, keuken en toilet. De gezellige woon-/eetkamer met open haard en originele en suite separatie. Vanuit de eetkamer zijn er openslaande deuren naar de achtertuin gelegen op het Zuiden. De ruime en zonnige achtertuin heeft aan de linkerzijde een houten berging, die goed gebruikt kan worden als hobbykamer, studeerkamer of kantoor. De keuken is voorzien een ingebouwde koelkast/vriezer, kookplaat met in het plafond geïntegreerde afzuigkap en een vaatwasser. De keuken heeft tevens een eigen toegangsdeur naar de achtertuin toe.
Via de ruime hal krijg je toegang tot de slaapkamer die gesitueerd is aan de voorkant. De andere bevindt zicht aan de achterkant van de woning. Deze heeft uitzicht over de prachtige groene tuin. Nette badkamer met inloopdouche, wastafel(meubel) en wascloset. een separaat toilet.
Bijzonderheden
- Woonoppervlakte ca. 90 m²
- Bouwjaar 1931
- Gelegen op eigen grond
- Half hout half kunststof kozijnen, volledig voorzien van dubbel glas
- Grote zonnige achtertuin van circa 125 m² met houten schuur
- Centrale verwarming met CV-ketel type Vaillant 2013
- Parkeren op basis van vergunning (van 9:00 t/m 14:00 uur op doordeweekse dagen). Veel beschikbaarheid in de straat en de omgeving
- Oplevering kan per direct
- Gemeten conform NEN2580/BBMI Gebruiksoppervlakte woningen
A+
A
B
C
D
E
F
G
H
















































































































































































