Omschrijving
Karakteristieke 5-kamer benedenwoning met zonnige tuin in Den Haag
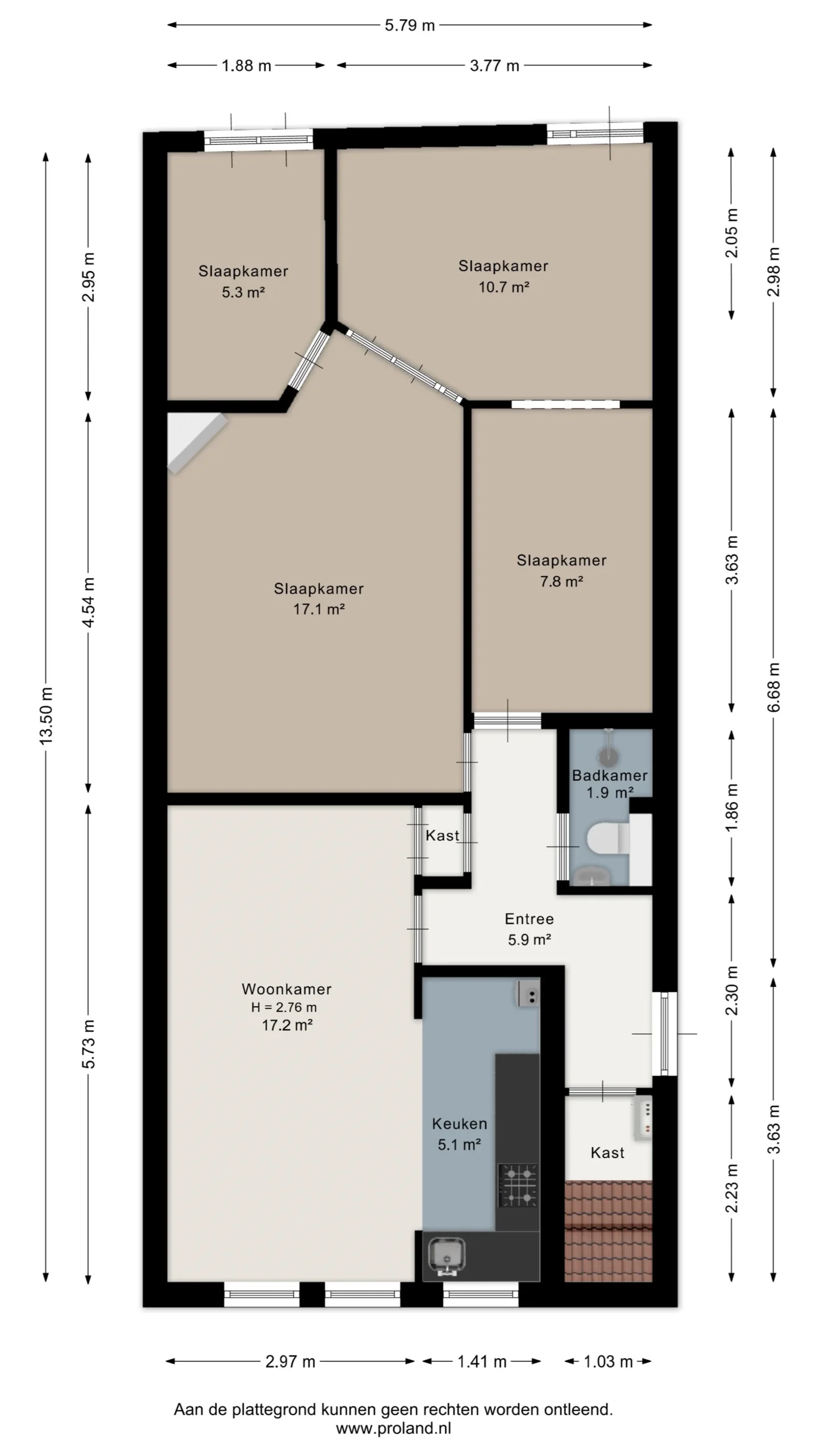
Op zoek naar ruimte, sfeer én mogelijkheden? Aan de Schapenlaan in Den Haag ligt deze charmante benedenwoning van ca. 89 m², gelegen op eigen grond. De woning uit 1927 ademt karakter en biedt met vijf kamers, waaronder vier royale slaapkamers, verrassend veel leefruimte — ideaal voor gezinnen, thuiswerkers of liefhebbers van comfortabel wonen. De grote raampartijen zorgen voor een prettige lichtinval en geven de woning een warme, uitnodigende uitstraling. De woning is netjes onderhouden en biedt tegelijkertijd volop mogelijkheden om deze geheel naar eigen smaak te moderniseren.
Indeling
Entree op straatniveau met hal en toegang tot alle vertrekken. De lichte woonkamer aan de voorzijde vormt het hart van de woning en biedt voldoende ruimte voor een comfortabel zit- en eetgedeelte. Dankzij de grote ramen voelt de ruimte open en aangenaam aan. De woning beschikt over vijf kamers, waarvan vier royale slaapkamers. Deze zijn flexibel in te richten en uitstekend geschikt als slaap-, werk-, logeer- of hobbyruimte. De centraal gelegen badkamer is voorzien van een douche, wastafel en toilet. De zonnige achtertuin met tuinhuis maakt het geheel compleet en biedt een fijne plek om te ontspannen, extra bergruimte of het creëren van een gezellige buitenruimte. Locatie Gelegen in een levendige en karaktervolle wijk met alle voorzieningen binnen handbereik, zoals winkels, supermarkten en horeca. Het centrum van Den Haag ligt op korte fietsafstand. Het openbaar vervoer is uitstekend geregeld met snelle verbindingen richting onder andere Den Haag Centraal Station. Ook zijn de uitvalswegen richting de rest van de Randstad eenvoudig bereikbaar.
Bijzonderheden: Bouwjaar 1927 Woonoppervlakte ca. 89 m² Gelegen op eigen grond 5 kamers, waarvan 4 royale slaapkamers Karakteristieke benedenwoning Zonnige tuin met tuinhuis Goede lichtinval Mogelijkheid tot modernisering Centrale ligging nabij voorzieningen Oplevering per direct mogelijk
A+
A
B
C
D
E
F
G
H








































































































































































































