Omschrijving
Scheppingstraat 2 “Laakkwartier-West”. Fraaie 3/4 kamer parterre hoekwoning van ca. 85m² uit 1935 met zeer riante voor-en achtertuin. De woning is gelegen op eigen grond.
Deze zeer fraaie hoekparterre beschikt over 85m² woonoppervlakte met twee riante slaapkamers (optie tot een derde slaapkamer), een aparte keuken, een ruime woonkamer, een badkamer en een zonnige achtertuin. Het appartement maakt deel uit van een actieve, gezonde Vereniging van Eigenaren. Het ligt bovendien zeer gunstig ten opzichte van diverse winkels, Station Hollands Spoor, het openbaar stadsvervoer, scholen, kinderopvang, centrum Oud-Rijswijk en een groen park met kinderboerderij. De uitvalswegen richting snelwegen A-4 en A-13 (Amsterdam/Rotterdam) en A-12 (Utrecht) zijn snel en gemakkelijk te bereiken.
Wij hebben ons best gedaan om een zo goed mogelijk beeld van deze geweldige woning te geven. Doormiddel van een zeer uitgebreide fotoreportage van de woning met plattegronden. Maar in het echt is het nog beter. Twijfel dus niet en kom langs!
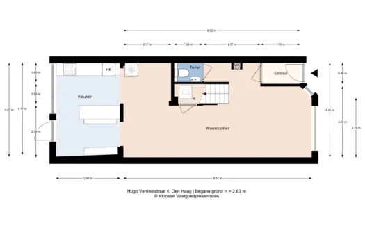
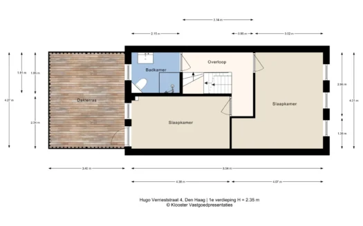
Indeling
Vanuit de gang krijgt u direct toegang tot het appartement met ruime, zonnige en hoge woonkamer. Afsluitbare keuken uitgerust met aanrecht, combi oven, vaatwasser, kookplaat en afzuigkap. U kunt zich zelf toegang verlenen tot de tuin middels de keuken en woonkamer. Grote slaapkamers aan de voorzijde met grote raampartij. Badkamer met multifunctioneel douchecabine, wastafelmeubel.
- Woonkamer: (9.49 x 3.44 m)
- Keuken: (2.81 x 2.30 m)
- Slaapkamer: (2.28 x 3.28 m)
- Slaapkamer: (2.99 x 3.28 m)
- Badkamer: (4.02 x 1.79 m)
Bijzonderheden
- Eigen grond
- Gebruiksoppervlakte ca. 85m²
- Oplevering kan per direct
- Actieve VVE, bijdrage thans € 50,- euro per maand
- Volledig voorzien van dubbel glas
- Verwarming middels eigen CV-ketel type NeFit 2016
- Gemeten conform NEN2580 Meetinstructie Gebruiksoppervlakte woningen
A+
A
B
C
D
E
F
G
H





































































































































































































































