Omschrijving
Ruime 4-kamer kluswoning met balkon – volledig naar eigen smaak te moderniseren!
Aan de Vier Heemskinderenstraat 168 in Den Haag vind je deze lichte en royale 4-kamerwoning op de eerste verdieping. Deze woning is een echte kluswoning, wat betekent dat je hier alle vrijheid hebt om je droominterieur en moderne indeling helemaal zelf te realiseren. Met drie slaapkamers, een ruime woonkamer en een balkon biedt dit appartement een uitstekende basis vol potentie.
Indeling
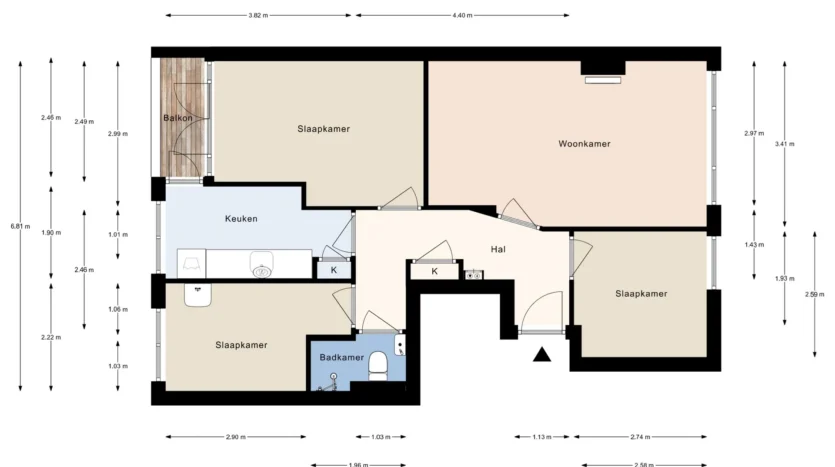
Via het portiek betreed je deze lichte en ruime woning op de eerste verdieping. De centrale hal verbindt op natuurlijke wijze alle kamers en geeft direct een gevoel van ruimte en mogelijkheden. Aan de rechterzijde bevindt zich de eerste slaapkamer, een lichte en ruime kamer die je volledig naar eigen smaak kunt inrichten. Rechtdoor kom je in de brede woonkamer, die dankzij de grote raampartijen bijzonder licht en uitnodigend is. Hier zijn volop mogelijkheden om een moderne en persoonlijke indeling te realiseren. De keuken ligt centraal in de woning en vormt een ideale plek om een complete renovatie of een eigentijdse woonkeuken te creëren. Via de naastgelegen slaapkamer heb je toegang tot het balkon, een fijne plek om rustig van de buitenlucht te genieten. De tweede en derde slaapkamer grenzen aan de keuken en bieden veel flexibiliteit: gebruik ze als kinderkamer, werkruimte, logeerkamer of zelfs als hobbyruimte. De badkamer is eenvoudig en toe aan modernisering, maar biedt voldoende ruimte om een praktische, moderne badkamer te realiseren. Kortom, deze woning is een echte kluswoning: een kans om een compleet huis naar eigen smaak en stijl te transformeren, met volop ruimte en licht als basis.
Bijzonderheden en Pluspunten – Bouwjaar 1936 – 65m2 woonoppervlak – kluswoning: volledige vrijheid om de woning naar eigen smaak te moderniseren – 3 volwaardige slaapkamers – Ruime, lichte woonkamer – Balkon aan de achterzijde – Centrale ligging nabij openbaar vervoer, winkels en voorzieningen – Kleine, gezonde VvE: bijdrage: €75,- per maand – Erfpachtcanon: €42,- per halfjaar Omgeving De woning ligt in een rustige, groene buurt met diverse parken en speelplekken op loopafstand, ideaal voor gezinnen. Voor ontspanning en sport liggen recreatiegebieden zoals het Haagse Bos en diverse plantsoenen dichtbij. Ook qua bereikbaarheid zit je hier goed: tram- en buslijnen zijn eenvoudig te bereiken, waardoor het centrum van Den Haag en het strand van Scheveningen binnen handbereik zijn.
Deze kluswoning biedt de perfecte combinatie van ruimte, licht en mogelijkheden. Met een renovatie kun je hier een prachtige, moderne woning creëren in een fijne en goed bereikbare omgeving van Den Haag. Benieuwd naar de mogelijkheden? Plan snel een bezichtiging!






















































































































































































