Omschrijving
LUXE COMPLEET NIEUWE EENGEZINSWONING | 5 KAMERS RUIM | TURN-KEY | CA. 226 M² | GELEGEN IN ZEER KINDVRIENDELIJKE WIJK DE REEF | 12 ZONNEPANELEN | ZEER CENTRALE LIGGING | ALLES IS ZEER HOOGWAARDIG AFGEWERKT EN OVERAL IS AAN GEDACHT!
We hebben er weer één! Met recht een pareltje op een toplocatie in Den Haag Ypenburg. Namens de verkoper(s) mag 88 Makelaars deze compleet nieuwe luxe woning aanbieden. Gelegen in de zeer groene en kindvriendelijke wijk Ypenburg de Reef. De straat is met de ruime straten, grote stukken groen, speeltuinen en sloten zeer kindvriendelijk te noemen. Deze woning zou zo uw nieuwe woonplek kunnen worden in misschien wel de mooiste buitenhoek van Den Haag.
De woning is geheel voorzien van vloerverwarming, balansventilatie met warmtepomp, 12 zonnecellen en HR ++ glazen wat de woning uniek en zeer energiezuinig maakt en het A++ label ook verklaart. Absoluut een stap naar een energie neutralere toekomst!
De woning is goed bereikbaar met veel voorzieningen in buurt. Gesitueerd op fietsafstand van het centrum van Den Haag, en loopafstand van het treinstation Ypenburg. Daarnaast zijn de volgende uitvalswegen op enkele minuten rijafstand: A4 (Den Haag – Amsterdam), A12 (Den Haag – Utrecht), A13 (Den Haag – Rotterdam).
Winkelcentra Leidschenveen, Ypenburg en de knusse Parade in Nootdorp, sportvoorzieningen waaronder het zwembad het Hofbad en het gezondheidscentrum, maar ook SnowWorld en Burggolf Zoetermeer. Kortom genoeg recreatiemogelijkheden.
Wacht niet te lang en plan vandaag nog een afspraak voor een bezichtiging. Onze makelaars staan graag voor je klaar. Wij hebben ons best gedaan om een zo goed mogelijk beeld van deze geweldige woning te geven. Dit is gedaan door middel van een zeer uitgebreide fotoreportage van de woning met plattegronden. Echter zijn wij wel van mening dat een woning pas echt beoordeeld kan worden door het zelf te ervaren. Kom daarom langs en ervaar de woning zelf!
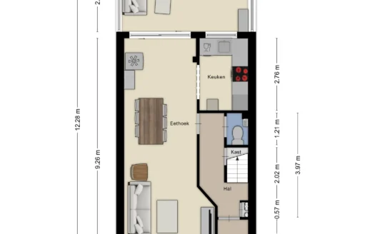
Indeling
De woning heeft een stijlvolle ruime en vooral zonnige voortuin. Heel toegankelijk en ook heerlijk om in de voortuin te vertoeven terwijl de kinderen spelen en je gezellig een drankje kan nuttigen, waardoor je je al voor binnenkomst al helemaal thuis voelt.
Via de entree krijg je toegang tot de een van de ruimste woonkamers die je zal tegenkomen van ca. 85 m² met compleet open keuken. Voorzien van berging onder de trap.
De luxe keuken is compleet open en heel gastvriendelijk door de open ligging in verhouding tot de rest van het woongedeelte met keukeneiland! Gezellig met je gasten in de keuken terwijl je kookt of met je kinderen voor ontbijt. De keuken is voorzien van een moderne inductie kookplaat met net afgewerkte afzuiging, afwasmachine, koel- vrieselement, oven en magnetron van het merk AEG.
Verder krijg je via de woonkamer toegang tot het separate zwevende toilet, geheel afgewerkt in stijlvolle marmerlook met fontein.
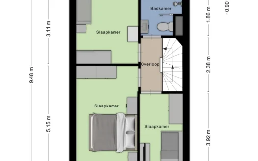
Eerste verdieping
Via de overloop krijg je toegang tot de twee ruime master bedrooms allebei voorzien van aparte badkamers en zeer grote raampartijen. De slaapkamer aan de voorzijde is de ruimste met als cherry on top ook nog een walk in closet. De slaapkamer aan de achterzijde heeft een prachtig uitzicht op het bos en de sloot en is tevens ook zeer ruim te noemen. De badkamers zijn wederom met marmerlook ingericht. Luxe afgewerkt met: zwevend toilet, inloop stortdouche, spiegel met ingebouwde led-verlichting en keurige badkamer accessoires.
Tweede verdieping
Via de overloop krijg je toegang tot alle vertrekken. Wederom 2 ruime slaapkamers met toegang tot een gedeelte badkamer met dezelfde afwerking als de vorige. De slaapkamers hebben wederom grote raampartijen. De slaapkamer aan de voorzijde heeft toegang tot het balkon. Zeer ruim en overdekt aan de zonnige kant van de woning. Volop genieten! Tevens is op deze verdieping een wasruimte aanwezig, waar de balansventilatie met WTW-unit.
Tuin
Voortuin gelegen op het zuidwesten, kortom de hele dag door lekker in de zon! De voortuin bied mogelijkheid tot privé parkeerplaats
Achtertuin gelegen op het noordoosten ideaal voor meer ochtend- en middagzon. Deze is zeer fraai afgewerkt en onderhoudsarm te noemen of nog geheel naar wens in te richten voor de echte tuinman of vrouw. Gezellig aan de sloot, ruime achtertuin, leuk voor de kinderen.
Bijzonderheden
DE (TECHNISCHE) DETAILS VAN HET HUIS
– Bouwjaar 2021;
– Energielabel A++;
– 12 Zonnepanelen;
– Eeuwigdurende erfpacht, canon € 193,94/m;
– Volledig v.v. dubbelglas HR ++;
– Vloerverwarming aanwezig op elke verdieping;
– C.V. middels warmtepomp;
– Voorzien van balansventilatie;
– Nog 10 jaar garantie op de woning;
– Zeer centrale ligging;
– Voorkeur overdracht zsm.
A+
A
B
C
D
E
F
G
H


















































































































































































































































